Ramirez Modern
Residential
Malibu, CA

Ramirez Modern
Rising from the ashes of the devastating Woolsey Fire in a very private and peaceful area of the Ramirez Canyon neighborhood of Malibu, this residence re-imagines a luxury modern oasis befitting the most discerning eye for quality and sophistication.
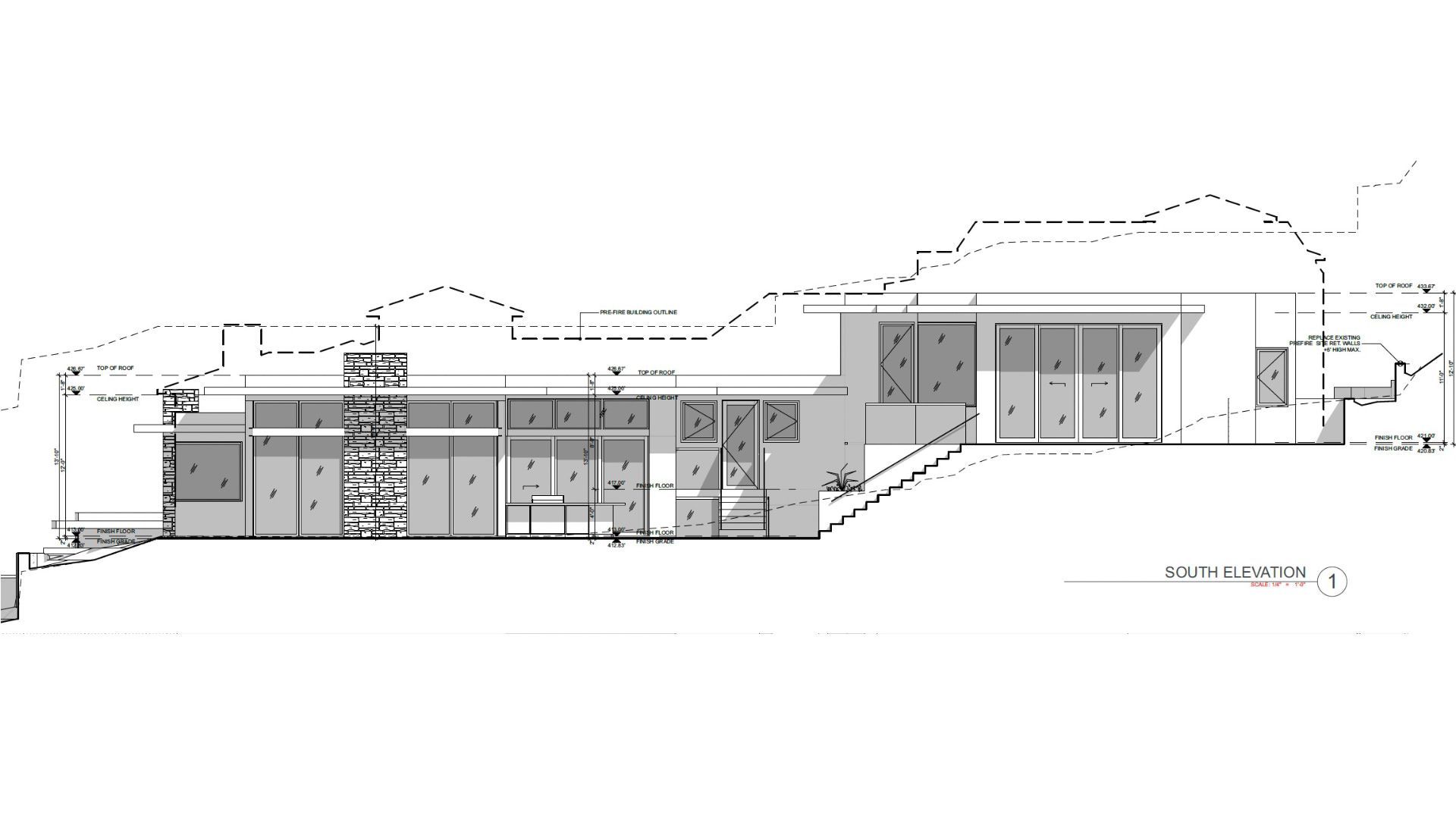
Comprised of a detached 806 square foot 3 car garage with a 452 square foot apartment on top together with a separate main house on 3 levels of 5,828 square feet, the project takes full advantage of it's sloping site with incredible views of the pacific ocean and the sunsets to the west from nearly every primary room in the house.
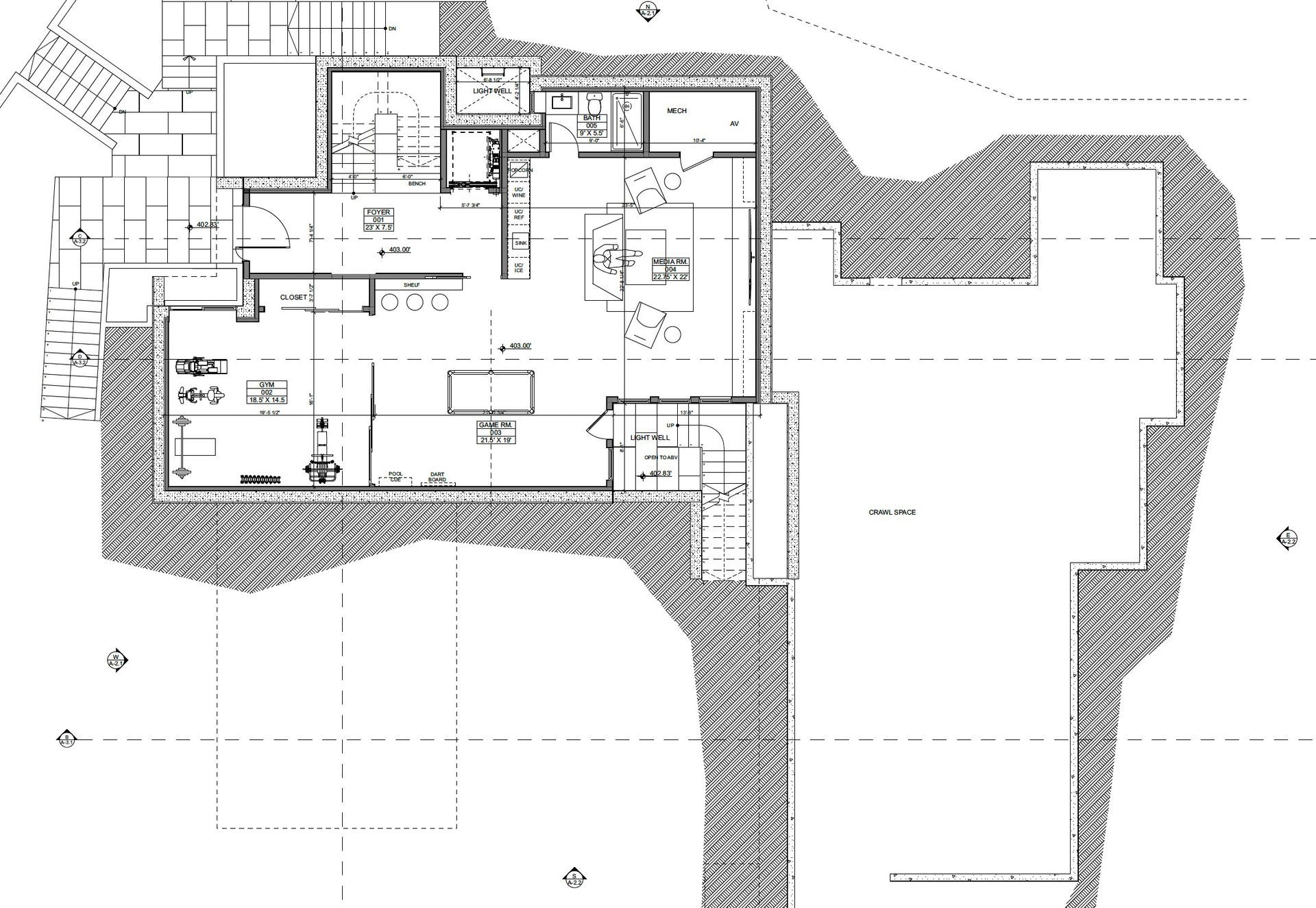
Equipped with a basement area of entertainment and exercise spaces, all levels of the home are connected to an internal/external courtyard with outdoor kitchen, pool, spa and fire pit. The design boasts an open floor plan kitchen, family, dining and great room area with 3 fully ensuited secondary bedrooms and a luxurious primary suite with generous dual walk in closets and bathing area.
With tall ceilings, modern detailing inside and out, and walls of glass that pocket away, this residence is as family friendly as it is an entertainer's showcase.
Sq. ft.
7,086
Type
Modern
Year
TBC 2026








