
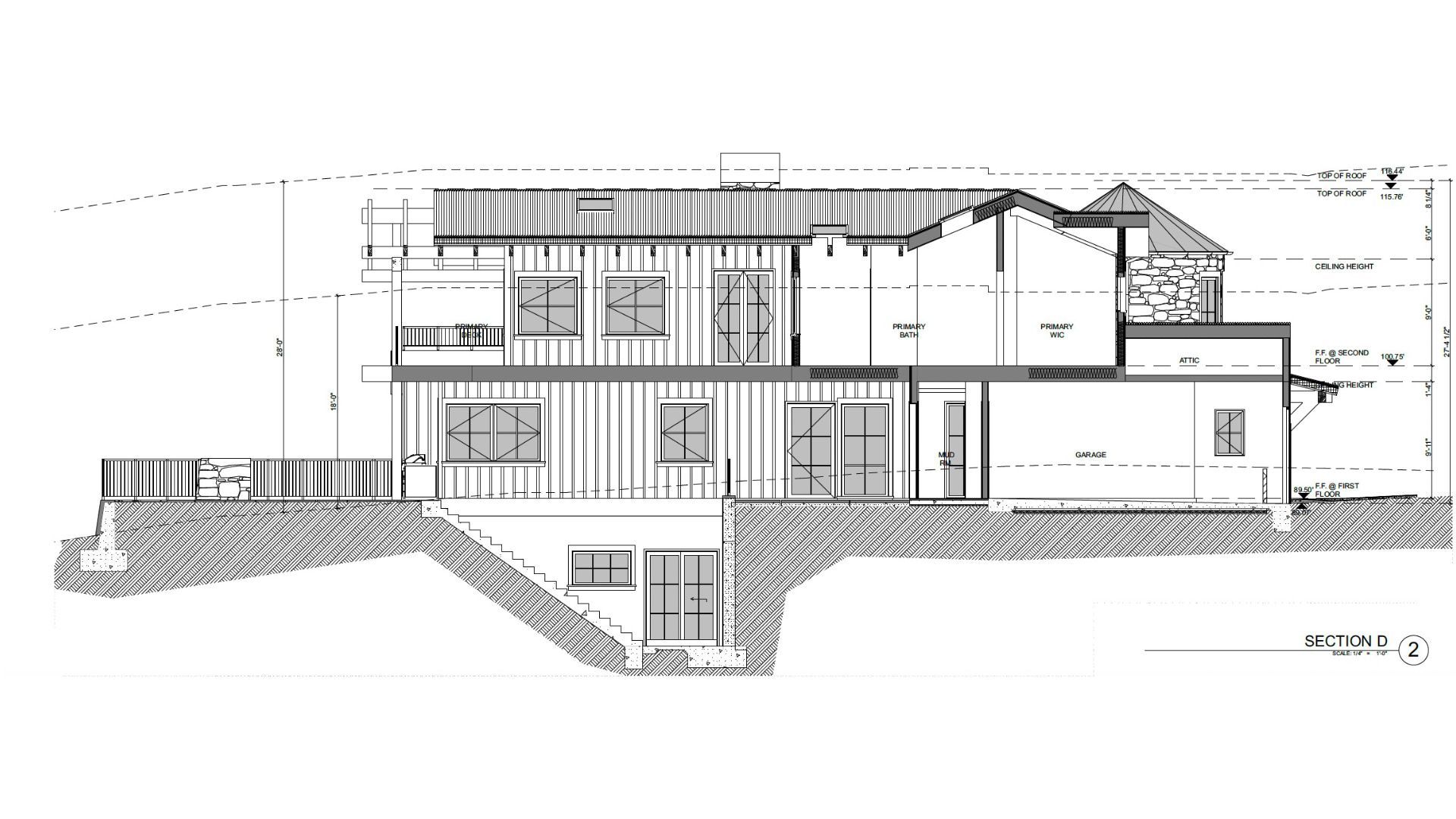
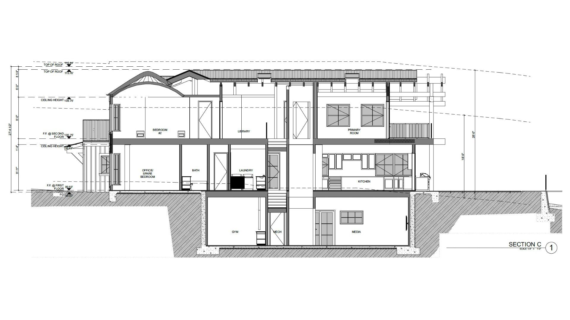
Point Dume Board & Batten
Designed for a long standing Malibu family, this Point Dume home is a modern interpretation of the traditional 'board & batten' style rendered in a warm white with local sandstone elements. Designed with the utmost of fire retardant features, this family home will be a nice compliment to a quaint street in the heart of Malibu. Modest in appearance yet grand in experience, this home has all the modern amenities one would expect while nestled in a grove of mature trees specifically sited to be preserved.
6,312
Neo-Traditional
TBC 2026
Ryan Levis Architect Inc.
Architecture, Planning, Interiors, Project Management
Ryan Levis AIA is a licensed architect in the states of California, Hawaii, New Mexico and is a member of the American Institute of Architects.
AIA# 30228048
Ryan Levis Architect | All Rights Reserved
Website designed by Archmark